Back to listings
Short Let
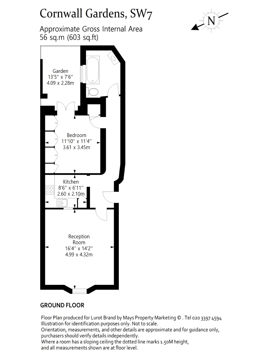
1 Bed Flat To Rent Cornwall Gardens, London, SW7 Asking Price £1,500 pw (£6,500 pcm)
A stunningly refurbished one-bedroom apartment.
Available for SHORT LETS, this property has been fully refurbished throughout to create a modern one-bedroom apartment on the lower ground floor of a period building in Cornwall Gardens.
The beautiful reception room features stylish wall panelling, wood flooring, and space for a both living and dining areas. The kitchen is fully fitted with integrated appliances, and the property further benefits from a double bedroom with fitted storage, a sleek bathroom, and a private patio.
Address
Cornwall Gardens, London, SW7
Price
£1,500 pw (£6,500 pcm)

Location
Cornwall Gardens is a popular garden square ideally situated for the diverse amenities of South Kensington with easy access around central London and beyond by road and rail.
Nearest Tube Stations
Gloucester Road (District Line)
Other Useful Information
- Deposit Amount (£) £9,000
- Length Of Tenancy Under six months
- Council Tax Band (England, Wales And Scotland) E
- EPC Rating D
- Available From 01-04-2026
Subscribe
We'd love to share latest mews news and regular updates with you










